Quadrilocale in vendita

Cervignano Del Friuli, Via Roma
€ 152.000
4 locali 4 locali
124 Mq 124 Mq
2 bagni 2 bagni

Quadrilocale in vendita

Cervignano Del Friuli, Via Roma

Descrizione annuncio

Tecnocasa, la più grande rete di intermediazione in Europa con 2.807 punti vendita in Italia e 4.022 nel mondo, vi propone:

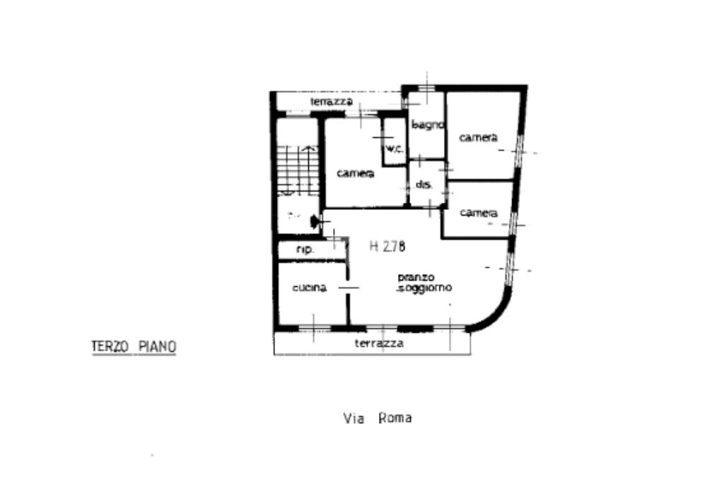
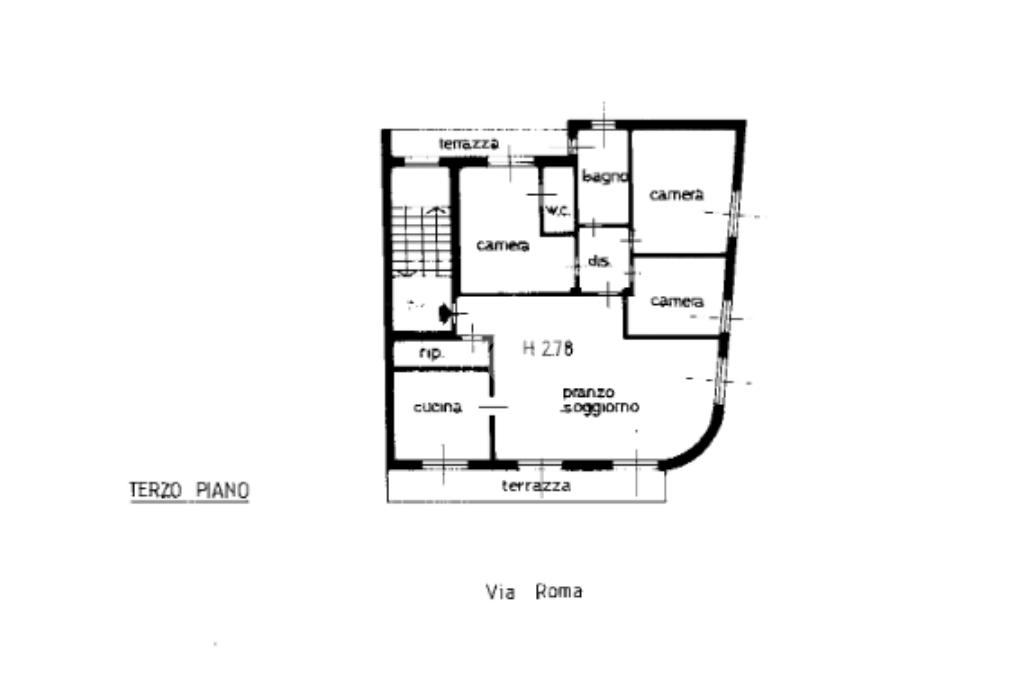
Nel cuore di Cervignano del Friuli, proponiamo in vendita un appartamento collocato al terzo e ultimo piano di una palazzina degli anni 60, senza ascensore, che si distingue per l’ottima distribuzione degli spazi e per la splendida luminosità naturale.

Entrati nell’abitazione siamo accolti da un ampio e luminoso soggiorno, con accesso diretto a una comodo balcone, ideale per momenti di relax all’aperto. La cucina abitabile garantisce praticità e comfort nella vita quotidiana, mantenendo una funzionale distinzione degli ambienti.

Tramite un pratico disimpegno si accede alla zona notte, che comprende: due camere matrimoniali di generose dimensioni, di cui una con bagno privato e una camera singola perfetta come stanza per bambini, ospiti o studio. Inoltre, a completare la zona notte presente un secondo bagno finestrato, con accesso al secondo balcone, affacciato sulla corte interna dello stabile.

Impreziosisce l’immobile un box auto, ideale anche come deposito.

L’immobile inoltre ha beneficiato di una ristrutturazione esterna nel 2019, che ha incluso la revisione del tetto, il rifacimento dei balconi e delle facciate. Successivamente, nel 2023, sono stati eseguiti interventi interni quali la realizzazione del cappotto interno, l’installazione di una caldaia a condensazione e di uno split per la climatizzazione sia estiva che invernale

Una soluzione abitativa ideale per chi è alla ricerca di funzionalità, comfort e di una posizione centrale, con tutti i servizi comodamente raggiungibili a piedi.

Mostra tutto

Nelle vicinanze

Trasporto pubblico Trasporto pubblico
Cervignano - Aquileia - Grado
Cervignano - Aquileia - Grado
610 m
V. Garibaldi
V. Garibaldi
500 m
Stazione Ferroviaria
Stazione Ferroviaria
580 m
Scuole Scuole
Scuola elementare primaria di Via Firenze
350 m
Scuola elementare primaria di Via Caiù
520 m
Scuola media "G. Randaccio"
590 m
Istituto d'istruzione secondaria superiore "Malignani"
820 m
Liceo Scientifico Statale Albert Einstein
1,1 Km
Farmacia Farmacia
Farmacia Sant'Antonio
160 m
Farmacia Lovisoni
210 m
Farmacia Comunale
1,5 Km
Menon Feresin S.N.C Di Lucia Grazia Menon E Isabella Feresin
2,9 Km
Supermercati Supermercati
Metà
50 m
Conad City
90 m
Super Di2
230 m
Eurospar
450 m
Lidl
910 m
Negozi Negozi
Tigotà
30 m
Terra e Sole
50 m
D più
900 m
Sirene Blu
1,7 Km
Bar Bar
Al Sole
40 m
Signum
60 m
Mela Verde
80 m
Bar Novo
80 m
Matrix
90 m
Ristoranti Ristoranti
Locanda Aquileia
190 m
Antica Osteria Italia
200 m
1813
220 m
Al Porto
310 m
Pizzeria L'Anguillaro
470 m
Mostra tutto

Caratteristiche

Rif.:
61165815
Piano:
3 di 3 (ultimo Piano)
Box:
1
Terrazzi:
2
Camere da letto:
3
Arredamento:
Assente
Mostra tutto
Prezzo Prezzo
€ 152.000
Rata mutuo Rata mutuo
€ 710 / mese
Spese annue Spese annue
€ 700
Proponi il tuo prezzoProponi il tuo prezzo

Classe Energetica

E
E
E
E
E
E
E
E
E
EP globale non rinnovabile:
198.01 kW h/m² anno
EP globale rinnovabile:
74.36 kW h/m² anno
EP invernale del fabbricato:
EP estiva del fabbricato:
Anno di costruzione:
1960
Riscaldamento:
Autonomo
Tipo impianto:
A radiatori
Tipo alimentazione:
Metano

Ti interessa visionare l'immobile?

Fissa un appuntamento  Fissa un appuntamento

Richiedi informazioni

Clicca su Leggi per aprire l'informativa
* Questi campi sono obbligatori

Calcola il tuo mutuo

Semplice e senza impegno
Anticipo

( % )
Mutuo

( % )

pochi semplici passi

inserisci i tuoi dati
Questionario completato
Grazie per aver richiesto un appuntamento senza impegno con un nostro Consulente del Credito e Assicurativo.

Hai inserito correttamente tutti i dati necessari e a breve riceverai una e-mail con un link da convalidare per inviare i tuoi dati.
Affiliato
Cervinano Srl
Via Roma, 45 33052 Cervignano Del Friuli (UD)

Il nostro staff


  • Roberto Minin
    Collaboratore

  • Antonina Novosylchuk
    Coordinatrice

  • Francesco Stabon
    Collaboratore

  • Tiziana Tremamunno
    Affiliata

  • Alex Gabriele Barbarino
    Affiliato
Via Roma, 45 33052 Cervignano Del Friuli (UD)
Zona: Cervignano-Aquileia-Torviscosa-Ruda-Fiumicello-Villa Vicentina
Mostra su mappa
Affiliato
Cervinano Srl
Via Roma, 45 33052 Cervignano Del Friuli (UD)

2026 Tecnocasa Franchising S.p.A. - P. IVA 08365160152 - Via Monte Bianco 60/A 20089 Rozzano (MI). Ogni agenzia ha un proprio titolare ed è autonoma. Privacy policy | Policy utilizzo | Cookie policy