Villa a schiera in vendita

Cervignano Del Friuli, Via sarcinelli
€ 249.000
Prezzo aggiornato
4 locali 4 locali
134 Mq 134 Mq
2 bagni 2 bagni

Villa a schiera in vendita

Cervignano Del Friuli, Via sarcinelli

Descrizione annuncio

Tecnocasa, la più grande rete di intermediazione in Europa con 2.807 punti vendita in Italia e 4.022 nel mondo, vi propone:

Questa villetta a schiera di testa, costruita nel 2004, unisce indipendenza e praticità in un contesto residenziale tranquillo e ben servito. Disposta su due livelli e la sua posizione angolare garantisce ambienti luminosi e una piacevole privacy.

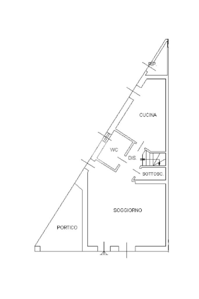
All’ingresso troviamo un ampio e luminoso soggiorno con doppio accesso allo spazio esterno, ideale per il relax e la convivialità. Un disimpegno conduce al bagno di servizio finestrato e alla cucina abitabile, anch’essa collegata al giardino. Completa il piano terra un pratico sottoscala ad uso ripostiglio.

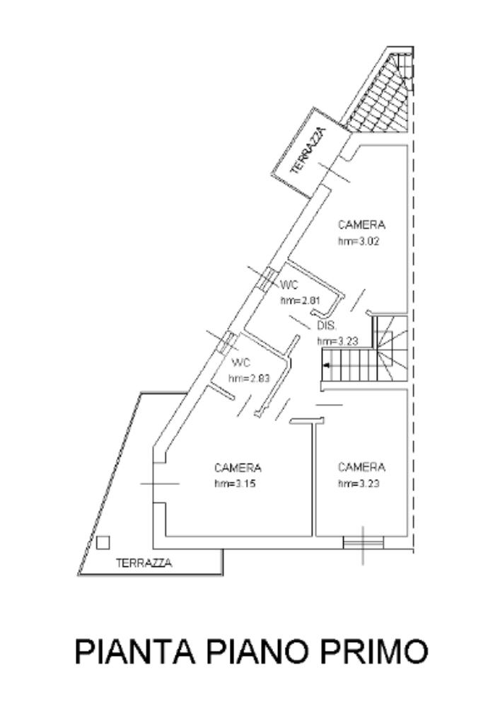
La zona notte si sviluppa sul secondo livello ed è composta da una camera matrimoniale con piccola cabina armadio e terrazza privata, il bagno padronale finestrato con vasca, una seconda camera ampia con terrazza e una terza camera singola, ideale come studio o stanza per gli ospiti.

L’esterno è pensato per offrire massima funzionalità: troviamo infatti un comodo portico, perfetto come posto auto coperto, e un ripostiglio aggiuntivo, ideale per bici, attrezzi o materiali stagionali.

Mostra tutto

Nelle vicinanze

Trasporto pubblico Trasporto pubblico
Cervignano - Aquileia - Grado
Cervignano - Aquileia - Grado
940 m
Viale Venezia
Viale Venezia
420 m
La Rotonda
La Rotonda
520 m
Scuole Scuole
Scuola media "G. Randaccio"
250 m
Scuola elementare primaria di Via Caiù
720 m
Circolo didattico (materna ed elementare) A. Bergamas
810 m
Scuola elementare primaria di Via Firenze
870 m
Istituto d'istruzione secondaria superiore "Malignani"
1,1 Km
Farmacia Farmacia
Farmacia Lovisoni
520 m
Farmacia Sant'Antonio
610 m
Farmacia Comunale
2,0 Km
Supermercati Supermercati
Super Di2
300 m
Metà
480 m
Lidl
480 m
Eurospar
600 m
Conad City
610 m
Negozi Negozi
D più
420 m
Terra e Sole
500 m
Tigotà
550 m
Sirene Blu
2,1 Km
Bar Bar
Nave
260 m
Il giardino dell'Eden
310 m
Ausa
350 m
Nazionale
350 m
New Stile Bar
410 m
Ristoranti Ristoranti
Al Porto
270 m
Antica Osteria Italia
400 m
La rotonda
530 m
1813
550 m
Chichibio
580 m
Mostra tutto

Caratteristiche

Rif.:
61118854
Piano:
1 di 1 (Piano su più livelli)
Posti auto:
1
Terrazzi:
2
Camere da letto:
3
Arredamento:
Parziale
Mostra tutto
Prezzo Prezzo
€ 249.000
Rata mutuo Rata mutuo
€ 1.173 / mese
Spese annue Spese annue
€ 0
Proponi il tuo prezzoProponi il tuo prezzo
Immobile valutato con T·Valuta

Classe Energetica

C
C
C
C
C
C
C
C
C
EP globale non rinnovabile:
117.28 kW h/m² anno
Anno di costruzione:
2004
Riscaldamento:
Autonomo
Tipo impianto:
A radiatori
Tipo alimentazione:
Metano

Prezzo ridotto di €1 (8%%)

Ti interessa visionare l'immobile?

Fissa un appuntamento  Fissa un appuntamento

Richiedi informazioni

Clicca su Leggi per aprire l'informativa
* Questi campi sono obbligatori

Calcola il tuo mutuo

Semplice e senza impegno
Anticipo

( % )
Mutuo

( % )

pochi semplici passi

inserisci i tuoi dati
Questionario completato
Grazie per aver richiesto un appuntamento senza impegno con un nostro Consulente del Credito e Assicurativo.

Hai inserito correttamente tutti i dati necessari e a breve riceverai una e-mail con un link da convalidare per inviare i tuoi dati.
Affiliato
Cervinano Srl
Via Roma, 45 33052 Cervignano Del Friuli (UD)

Il nostro staff


  • Roberto Minin
    Collaboratore

  • Antonina Novosylchuk
    Coordinatrice

  • Francesco Stabon
    Collaboratore

  • Tiziana Tremamunno
    Affiliata

  • Alex Gabriele Barbarino
    Affiliato
Via Roma, 45 33052 Cervignano Del Friuli (UD)
Zona: Cervignano-Aquileia-Torviscosa-Ruda-Fiumicello-Villa Vicentina
Mostra su mappa
Affiliato
Cervinano Srl
Via Roma, 45 33052 Cervignano Del Friuli (UD)

2026 Tecnocasa Franchising S.p.A. - P. IVA 08365160152 - Via Monte Bianco 60/A 20089 Rozzano (MI). Ogni agenzia ha un proprio titolare ed è autonoma. Privacy policy | Policy utilizzo | Cookie policy